Pembina House

PEMBINA HOUSE, Lac Ste. Anne County, Alberta

This slideshow requires JavaScript.

This country residence is located on 82 acres adjacent to the Pembina River, near Rich Valley, Alberta, northwest of Edmonton. The property is relatively isolated from both neighbours and utlities. Therefore it was an easy decision to plan for completely off-the-grid development. The location, at the highest elevation of the site, is readily accessible by a new, all-season, 1/2 mile long road. The high elevation ensures great views as well as good communications reception and excellent solar exposure.

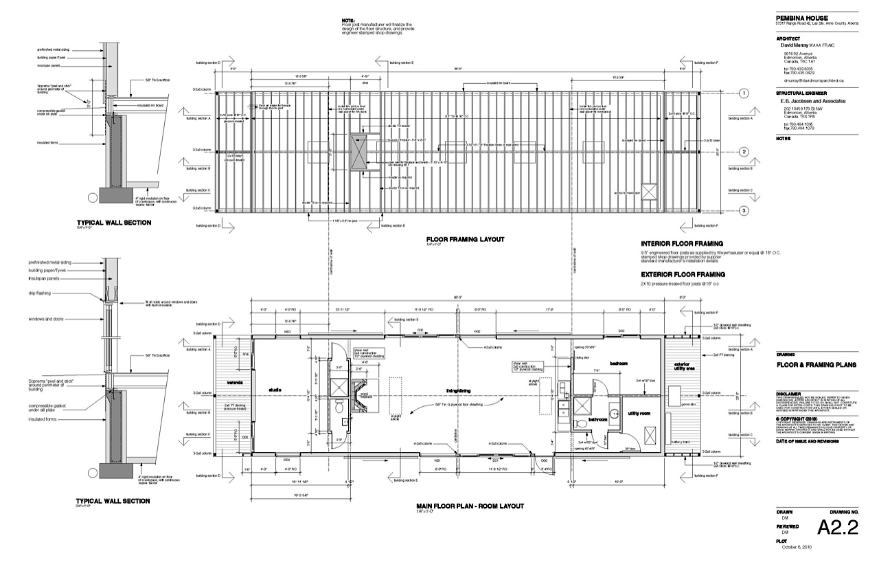
The residence is designed for the architect’s family. It is an all-season retreat that will provide a measure of comfort to enjoy this special rural location, as well as being very energy efficient. Foundation construction is with ICF forms (insulated concrete forms). Building envelope construction is from SIPS panels (structural insulated panel system) consisting of 8″ thick foam-insulated walls and a 12″ deep foam-insulated roof. The exterior is completely clad in steel siding and roofing to ensure protection against forest fires. The appearance of the building is intended to be a ‘vernacular’ expression, meaning that it deliberately refers to the common farm architecture that populates the contemporary rural landscape. The steel cladding finish is “Galvalume” which replicates traditional galvanized steel finish of rural farm buildings. The residence will be completed with sliding wood panels that cover the doors and windows, providing additional security and weather protection.

Off-the-grid features will include photo-voltaic panels mounted to the south face of the building that generate electricity. They will eventually be supplemented with a wind generator, which is feasible in this top-of-the-valley location. The electrical system is backed up with a propane-fueled generator. Many energy-saving features in the residence will reduce the use of electricity. It is hoped that enough electricity can to be generated to minimize the use of propane as an energy source. The large south- facing patio doors and windows provide a substantial amount of passive solar gain in the winter.

The source of water is a deep well (250 feet) and the sanitary drainage consists of a traditional septic system.

The residence is 80′ long x 20′ wide with verandas at both ends. The east veranda is intended for utilities, including the back-up generator, and the west veranda is intended for sleeping outdoors. The central living/dining room, with a 14′ ceiling, has 12′ wide sliding patio doors and large windows that extend to the floor enhancing the indoor/outdoor connection. Future exterior decks on the north and south will extend the interior living space to the exterior.

Trades and Suppliers

  • Structural Engineer: E.B. Jacobsen and Associates
  • Roadwork and Foundations: Robert Sherwood Contracting and Triple Creek Holdings – Jim Sherwood
  • Foundations: Logix Insulated Concrete Forms
  • SIPS panels: Supplied by Insulspan and installed by Westech Construction, Edmonton
  • Glazing and doors: Marvin Windows and Doors
  • Off-the-grid Electricity Design and Supply: Solar Watt Ltd., Sangudo
  • Electrician: SureTech Electric Ltd., Roy Sherwood
  • Mechanical and Plumbing: Sailor’s Plumbing and Heating Ltd., Tomahawk Alberta
  • Roofing: A. Clark Roofing and Siding Ltd, Edmonton
  • Metal siding and roofing: Lenmak Exterior Innovations, Edmonton
  • Well Drilling: Sumers Drilling Ltd., Stony Plain
  • Well Scouting: Waterfind, Gary Kehler